Encircle est une solution de gestion des réclamations d'assurance et d'interventions sur le terrain qui s'adresse à l'ensemble de l'écosystème assurantiel. Ce logiciel combine des fonctionnalités de documentation mobile et web permettant aux professionnels de collecter efficacement des informations visuelles et textuelles tout en automatisant leurs processus. Encircle propose des outils spécialisés comme la création de formulaires, la signature électronique et la gestion des plans au sol, essentiels pour les compagnies d'assurance et les entreprises de réfection. Cette solution s'adapte particulièrement aux besoins des entreprises de toutes tailles intervenant dans le secteur de l'assurance habitation et de la maintenance.

Vous êtes propriétaire du logiciel "Encircle" ? Revendiquez votre logiciel

Note moyenne

4.8

Support client
5.0
Potentiel d'évolution
4.4
Fonctionnalités
5.0
Ergonomie
5.0
Budget
3.9
Budget
3.9
Prix

Secteurs d'activité

Finance/Banque
45 %
Immobilier
30 %
BTP
15 %
Services
10 %

Cibles client

Petites et Moyennes Entreprises (PME)
45%
Entreprises de Taille Intermédiaire (ETI)
35%
Moyennes et Grandes Entreprises (MGE)
20%
Sandra - Experte logiciel

Avez-vous déjà utilisé Encircle ?

Partagez vos expériences avec d'autres acheteurs de logiciels.

A propos

Fonctionnalités principales d'Encircle

Encircle propose un ensemble complet de fonctionnalités pour la gestion des réclamations d'assurance et des interventions :
  • Documentation mobile : Capture d'images, vidéos et notes directement sur le terrain avec synchronisation automatique
  • Traitement des réclamations : Suivi complet du cycle de réclamation, de l'ouverture à la résolution
  • Création de formulaires personnalisables : Adaptés aux besoins spécifiques de chaque type d'intervention
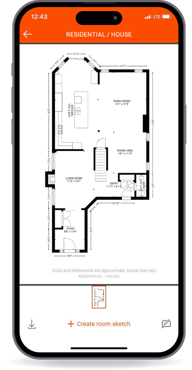
  • Plans au sol interactifs : Visualisation et annotation des zones concernées par les sinistres
  • Signature électronique : Validation des documents et accords directement sur appareil mobile
Les utilisateurs apprécient particulièrement la facilité de partage de fichiers entre toutes les parties prenantes, l'interface mobile intuitive, l'automatisation des rapports d'intervention, et les capacités d'intégration avec les systèmes d'assurance existants. Encircle prévoit d'enrichir son offre avec l'intelligence artificielle pour l'estimation des dommages, une plateforme collaborative améliorée et des analyses prédictives pour la prévention des sinistres.

Atouts majeurs

Documentation mobile de terrain efficace Gestion complète des réclamations d'assurance Formulaires personnalisables et signature électronique Interface intuitive pour tous les utilisateurs

Vidéo

Visionner la vidéo
Marketing with Agentforce

Vidéo présentation Encircle

Nos experts

Besoin d'aide pour choisir ?

Nos experts sont là pour vous accompagner gratuitement dans le choix de votre logiciel.

Captures d'écran de Encircle

Encircle
Encircle
Encircle
Encircle
/
Encircle

Livres blancs pour Encircle

Livre blanc « Archivage électronique sécurisé des documents : normes de sécurité 2022 »
GED

Livre blanc « Archivage électronique sécurisé des documents : normes de sécurité 2022 »

Livre Blanc DocuWare : Passer à la facture électronique | CELGE
Facturation & Devis

Livre Blanc DocuWare : Passer à la facture électronique | CELGE

Livre blanc : La facture électronique
Signature Électronique

Livre blanc : La facture électronique

Rejoignez les 16 000+ entreprises qui ont obtenu leur audit gratuit !

Découvrez les meilleures solutions logicielles adaptées à vos besoins.

100% gratuit 15 ans d'expérience logicielle Réponse en moins de 48 heures Impartial 40 000+ entreprises accompagnées

100% gratuit 15 ans d'expérience logicielle Réponse en moins de 48 heures Impartial 40 000+ entreprises accompagnées

100% gratuit 15 ans d'expérience logicielle Réponse en moins de 48 heures Impartial 40 000+ entreprises accompagnées